Search

NAROLA VILLA

PROJECT DETAILS

 

Project: Narola Villa

Design Area: 24,415 sq ft

Client: Mr. Arpit Narola & Family

Year of Completion: 2020

Design Team: Oblique, EssTeam

Photography Credits: Prachi Khasgiwala

CONCEPT 

LEFT HOUSE 

GROUND FLOOR PLAN

LEFT HOUSE 

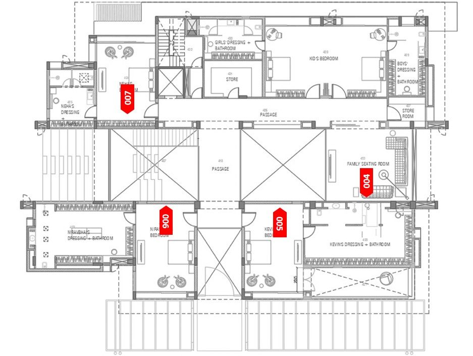
FIRST FLOOR PLAN

LIVING ROOM 

Concept: Stability

Dimension: 3350 mm  x 1520 mm

Technique: Leather & brass on MDF base

DINING AREA 

Concept: Rooted

Dimension: 1070 mm  x 1524 mm

Technique: Painted MDF base with twisted golden wires

SHANTABA’S BEDROOM 

Concept: Cool Headed

Dimension: 1070 mm  x 1525 mm

Technique: Artistic Textured Paint on MDF base

FAMILY ROOM

Concept: Tile Motif

Dimension: 2100 mm  x 1070 mm

Technique: Hand knotted rug on MDF base

KEVINBHAI’S BEDROOM 

Concept: Simplicity

Dimension: 2620 mm  x 1200 mm

Technique: Rustic Polished Teakwood with Painted Background

KEVINBHAI’S DRESSING & BATHROOM 

Concept: Simplicity

Dimension: 860 mm  x 1525 mm

Technique: Glass Mosaic on MDF with wooden frame

NIRAVBHAI’S BEDROOM 

Concept: Adaptability

Dimension: 1100 mm x 1100 mm

Technique: Water jet-cut brass layers on painted MDF

NEHABEN’S BEDROOM 

Concept: Delicate

Dimension: 1800 mm  x 1200 mm

Technique: Brass accents on painted and layered MDF base

RIGHT HOUSE 

GROUND FLOOR PLAN

RIGHT HOUSE 

FIRST FLOOR PLAN

LIVING ROOM 

Concept: Fluidity

Dimension: 3540 mm x 1525 mm

Technique: Parametrically design CNC cut on painted MDF base

LIVING ROOM 

Concept: Fluidity

Dimension: 1400 mm x 1400 mm

Technique: Parametrically design CNC cut on painted MDF base

DINING AREA 

Concept: Enthusiastic

Dimension: 1400 mm x 1400 mm

Technique: Brass and CNC cut on painted and layered MDF

SHANTABA’S 

Concept: Warm Hearted

Dimension: 1100 mm x 1525 mm

Technique: Artistic Textured paint on MDF

JAYANTIBHAI’S BEDROOM 

Concept: Ambitious

Dimension: 1500 mm x 1500 mm

Technique: Artistic paint on canvas

ARPITBHAI’S BEDROOM 

Concept: Organized

Dimension: 1200 mm x 1700 mm

Technique: CNC faceted MDF with paint

UTKARSHBHAI’S BEDROOM 

Concept: Complexity

Dimension: 2100 mm x 900 mm

Technique: Coloured Rope art with frame

EKTABEN’S BEDROOM 

Concept: Spontaneous

Dimension: 1800 mm x 900 mm

Technique: Layered painted MDF with a rose gold finish metal sheet